• Eigentumsgrundstück
• in einer Sackgasse gelegen
• bis zu 7 Schlafzimmer
• 3 Bäder mit Tageslicht (2 von 3 bereits saniert)
• offener Wohn- und Essbereich inkl. Einbauküche
• Kaminofen
• große Terrasse – teilweise überdacht
• Wärmedämmung am gesamten Objekt 2014
• Gasheizung (2012)
• Balkonkraftwerk (2024)
• abschließbare 2-fach verglaste Fenster
• teilweise Außenrollläden
• Wallboxanschluss
• geräumige Garage
• bis zu 3 Außenstellplätze
• teilunterkellert
Ein Haus mit vielen Perspektiven – Großzügiges Wohnen in Calberlah
Objektdaten
Ausstattung
Objektbeschreibung
Dieses großzügig geschnittene Haus in Calberlah bietet mit rund 224 m² Wohnfläche nicht nur viel Platz für die ganze Familie, sondern auch zahlreiche Nutzungsmöglichkeiten. Ob als komfortables Familienzuhause mit separater Einliegerwohnung oder als Kombination aus Wohnen und Arbeiten – hier sind der Gestaltung kaum Grenzen gesetzt. Dank der durchdachten Raumstruktur ist sowohl eine private als auch eine gewerbliche Nutzung möglich.
Das Haus wurde 1985 erbaut, steht auf einem 841 m² großen Eigentumsgrundstück und verfügt über acht Zimmer. Beheizt wird es mit einer Gasheizung aus dem Jahr 2012. Im Jahr 2024 kamen Balkonkraftwerke hinzu, die die Energieeffizienz zusätzlich erhöhen. Die zweifach verglasten Fenster verfügen teilweise über Außenrollläden, einer davon elektrisch bedienbar. Die ruhige Lage am Ende einer Sackgasse sorgt für ein entspanntes, verkehrsarmes Wohnumfeld.
Auf dem Grundstück stehen drei Außenstellplätze sowie eine große Garage mit elektrischem Tor zur Verfügung.
Der Eingangsbereich bietet Platz für eine Garderobe und führt zentral in alle Ebenen des Hauses. Auf der linken Seite gelangen Sie in den Wohn- und Essbereich, wo ein Kaminofen für behagliche Wärme sorgt. Große Fensterflächen lassen viel Tageslicht herein und öffnen den Zugang zur Terrasse.
Über die erste Treppe erreichen Sie ein Split-Level mit einem separaten Wohnbereich, der sich ideal als Einliegerwohnung eignet: Ein Flur verbindet das Duschbad mit Fenster, ein Schlafzimmer sowie einen Bereich, der als offene Wohnküche gestaltet werden kann.
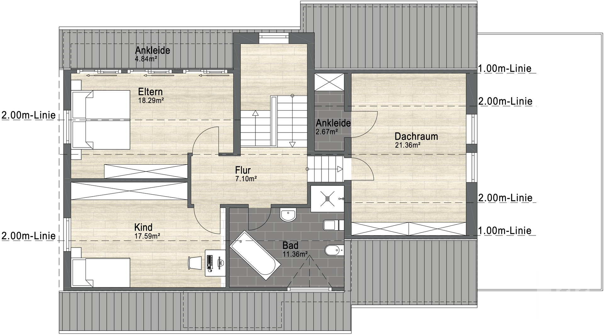
Ein weiteres Split-Level führt Sie ins Dachgeschoss mit dem Hauptbadezimmer – ausgestattet mit Badewanne, Dusche, WC, Bidet und Tageslicht – sowie drei gemütlichen Schlafzimmern.
Der Keller ist ebenfalls auf zwei Ebenen aufgeteilt: Der obere Bereich bietet einen wohnlich ausgebauten Teil mit Bad und zwei hellen, flexibel nutzbaren Räumen, ehemals gewerblich genutzt. Im unteren Bereich befinden sich Hausanschlüsse, Werkstatt und Lagerräume.
Der gepflegte Garten lädt zum Verweilen oder zur individuellen Gestaltung ein.
Dieses Haus überzeugt durch Großzügigkeit, klare Struktur und vielfältige Nutzungsmöglichkeiten – ein Zuhause mit viel Flexibilität und Potenzial. Ein Ort, an dem Sie Ihren ganz persönlichen Lebensstil verwirklichen können.
Objektbeschreibung
Dieses großzügig geschnittene Haus in Calberlah bietet mit rund 224 m² Wohnfläche nicht nur viel Platz für die ganze Familie, sondern auch zahlreiche Nutzungsmöglichkeiten. Ob als komfortables Familienzuhause mit separater Einliegerwohnung oder als Kombination aus Wohnen und Arbeiten – hier sind der Gestaltung kaum Grenzen gesetzt. Dank der durchdachten Raumstruktur ist sowohl eine private als auch eine gewerbliche Nutzung möglich.
Das Haus wurde 1985 erbaut, steht auf einem 841 m² großen Eigentumsgrundstück und verfügt über acht Zimmer. Beheizt wird es mit einer Gasheizung aus dem Jahr 2012. Im Jahr 2024 kamen Balkonkraftwerke hinzu, die die Energieeffizienz zusätzlich erhöhen. Die zweifach verglasten Fenster verfügen teilweise über Außenrollläden, einer davon elektrisch bedienbar. Die ruhige Lage am Ende einer Sackgasse sorgt für ein entspanntes, verkehrsarmes Wohnumfeld.
Auf dem Grundstück stehen drei Außenstellplätze sowie eine große Garage mit elektrischem Tor zur Verfügung.
Der Eingangsbereich bietet Platz für eine Garderobe und führt zentral in alle Ebenen des Hauses. Auf der linken Seite gelangen Sie in den Wohn- und Essbereich, wo ein Kaminofen für behagliche Wärme sorgt. Große Fensterflächen lassen viel Tageslicht herein und öffnen den Zugang zur Terrasse.
Über die erste Treppe erreichen Sie ein Split-Level mit einem separaten Wohnbereich, der sich ideal als Einliegerwohnung eignet: Ein Flur verbindet das Duschbad mit Fenster, ein Schlafzimmer sowie einen Bereich, der als offene Wohnküche gestaltet werden kann.
Ein weiteres Split-Level führt Sie ins Dachgeschoss mit dem Hauptbadezimmer – ausgestattet mit Badewanne, Dusche, WC, Bidet und Tageslicht – sowie drei gemütlichen Schlafzimmern.
Der Keller ist ebenfalls auf zwei Ebenen aufgeteilt: Der obere Bereich bietet einen wohnlich ausgebauten Teil mit Bad und zwei hellen, flexibel nutzbaren Räumen, ehemals gewerblich genutzt. Im unteren Bereich befinden sich Hausanschlüsse, Werkstatt und Lagerräume.
Der gepflegte Garten lädt zum Verweilen oder zur individuellen Gestaltung ein.
Dieses Haus überzeugt durch Großzügigkeit, klare Struktur und vielfältige Nutzungsmöglichkeiten – ein Zuhause mit viel Flexibilität und Potenzial. Ein Ort, an dem Sie Ihren ganz persönlichen Lebensstil verwirklichen können.
Energieausweis
Kontaktdaten

38440 Wolfsburg