• Eigentumsgrundstück
• Massivbau 2006, Anbau 2009
• PV Anlage 7,47 kwP
• moderne Einbauküche
• 4 Schlafzimmer
• Einliegerwohnung mit Bad und Abstellraum
• Hauptbad mit Dusche
• Gäste-WC
• 2-fach verglaste Fenster (tlw. mit Außenrollläden)
• Gasheizung
• Carport und 4+ Außenstellplätze
• Spitzboden als Lagerfläche
• Glasfaseranschluss
• großzügiger Garten mit Hobbyräumen
Ruhig, naturnah und bestens angebunden: Familien willkommen in Vordorf
Objektdaten
Ausstattung
Objektbeschreibung
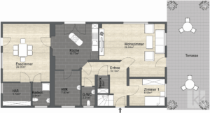
Dieses Einfamilienhaus mit Einliegerwohnung wurde 2006 in massiver Bauweise errichtet und überzeugt mit 185 m² Wohnfläche auf einem 554 m² großen Grundstück. Vor dem Haus stehen vier Stellplätze sowie ein Carport zur Verfügung. Das Gebäude ist vollständig gedämmt, wird mit Gas beheizt und verfügt zusätzlich über eine Photovoltaikanlage aus dem Jahr 2022 mit 7,47 kWp und einem zehn Kilowatt Speicher. In den letzten Jahren wurden zahlreiche Modernisierungen durchgeführt: 2022 entstand ein neues Gäste-WC im Erdgeschoss, 2024 folgte die Sanierung der Bäder im Obergeschoss und in der Einliegerwohnung, zudem wurden sämtliche Innentüren ausgetauscht und der Bodenbelag im Erdgeschoss erneuert.
Im Eingangsbereich des Haupthauses befindet sich ein Büro, über einen kleinen Flur gelangt man in den Wohnbereich mit Klimaanlage und Zugang auf die Terrasse mit Blick in den Garten. Von hier erreicht man auch die großzügig angelegten Hobbyräume. Die Küche aus 2008 ist mit modernen Geräten ausgestattet und grenzt an einen praktischen Hauswirtschaftsraum. Über die Küche besteht der direkte Zugang zur Einliegerwohnung, die vollständig autark ist und sich auch hervorragend für eine gewerbliche Nutzung eignet. Aktuell bietet sie einen großen Raum mit Klimaanlage, ein Badezimmer mit Dusche sowie einen Abstellraum, der bei Bedarf in ein weiteres Zimmer aufgeteilt werden kann.
Im Obergeschoss des Haupthauses erwarten Sie ein großes Schlafzimmer, ein Kinderzimmer sowie ein Durchgangszimmer, das in ein weiteres Kinderzimmer mit Klimaanlage führt. Das modernisierte Badezimmer mit großer, ebenerdiger Dusche ist an eine Ankleide mit Waschmaschinenanschluss angebunden.
Das Grundstück ist pflegeleicht angelegt und bietet hinter dem Carport einen Anbau, der derzeit als Fitnessraum genutzt wird und mit modernen Elektroheizkörpern ausgestattet ist. Ein weiterer Abstellraum sowie zusätzlicher Stauraum im Dachstuhl des Haupthauses runden das Platzangebot ab.
Das Haus präsentiert sich in einem bezugsfertigen Zustand und vereint modernes Wohnen mit vielseitigen Nutzungsmöglichkeiten – ideal für Familien, Mehrgenerationen oder die Verbindung von Wohnen und Arbeiten.
Objektbeschreibung
Dieses Einfamilienhaus mit Einliegerwohnung wurde 2006 in massiver Bauweise errichtet und überzeugt mit 185 m² Wohnfläche auf einem 554 m² großen Grundstück. Vor dem Haus stehen vier Stellplätze sowie ein Carport zur Verfügung. Das Gebäude ist vollständig gedämmt, wird mit Gas beheizt und verfügt zusätzlich über eine Photovoltaikanlage aus dem Jahr 2022 mit 7,47 kWp und einem zehn Kilowatt Speicher. In den letzten Jahren wurden zahlreiche Modernisierungen durchgeführt: 2022 entstand ein neues Gäste-WC im Erdgeschoss, 2024 folgte die Sanierung der Bäder im Obergeschoss und in der Einliegerwohnung, zudem wurden sämtliche Innentüren ausgetauscht und der Bodenbelag im Erdgeschoss erneuert.
Im Eingangsbereich des Haupthauses befindet sich ein Büro, über einen kleinen Flur gelangt man in den Wohnbereich mit Klimaanlage und Zugang auf die Terrasse mit Blick in den Garten. Von hier erreicht man auch die großzügig angelegten Hobbyräume. Die Küche aus 2008 ist mit modernen Geräten ausgestattet und grenzt an einen praktischen Hauswirtschaftsraum. Über die Küche besteht der direkte Zugang zur Einliegerwohnung, die vollständig autark ist und sich auch hervorragend für eine gewerbliche Nutzung eignet. Aktuell bietet sie einen großen Raum mit Klimaanlage, ein Badezimmer mit Dusche sowie einen Abstellraum, der bei Bedarf in ein weiteres Zimmer aufgeteilt werden kann.
Im Obergeschoss des Haupthauses erwarten Sie ein großes Schlafzimmer, ein Kinderzimmer sowie ein Durchgangszimmer, das in ein weiteres Kinderzimmer mit Klimaanlage führt. Das modernisierte Badezimmer mit großer, ebenerdiger Dusche ist an eine Ankleide mit Waschmaschinenanschluss angebunden.
Das Grundstück ist pflegeleicht angelegt und bietet hinter dem Carport einen Anbau, der derzeit als Fitnessraum genutzt wird und mit modernen Elektroheizkörpern ausgestattet ist. Ein weiterer Abstellraum sowie zusätzlicher Stauraum im Dachstuhl des Haupthauses runden das Platzangebot ab.
Das Haus präsentiert sich in einem bezugsfertigen Zustand und vereint modernes Wohnen mit vielseitigen Nutzungsmöglichkeiten – ideal für Familien, Mehrgenerationen oder die Verbindung von Wohnen und Arbeiten.
Energieausweis
Kontaktdaten

38440 Wolfsburg