• Eigentumsgrundstück
• renovierungsbedürftige Immobilie
• großer Wohn- und Essbereich mit anliegender Südterrasse
• bis zu 5 Schlafzimmer
• 2 Badezimmer mit Badewanne und Dusche
• Gäste-WC
• Holzfenster 2-fach verglast (Glasscheiben 2011/2012)
• Dach mit Betonziegeln (2021 gereinigt und imprägniert)
• Gasheizung 2023
• Vollkeller teilweise beheizt, untere Geschossdecke nachträglich gedämmt
• Partykeller
• Garage
• weitere Stellplätze auf dem Grundstück
Zuhause mit Zukunft – Einfamilienhaus mit viel Gestaltungsspielraum in Weyhausen
Objektdaten
Ausstattung
Objektbeschreibung
Gepflegte Substanz, ruhige Lage und viel Raum zur Entfaltung – dieses Haus bietet ideale Voraussetzungen für Familien, die ein solides Zuhause suchen und es nach eigenen Vorstellungen gestalten möchten.
Das Einfamilienhaus wurde 1977 in massiver Bauweise errichtet und verfügt über rd. 186 m² Wohnfläche auf einem 703 m² großen Eigentumsgrundstück. Es wurde über die Jahre gepflegt und regelmäßig instand gehalten: Beispielsweise wurde das Dach 2021 gereinigt und imprägniert oder die Gasheizung im Jahr 2023 erneuert. Dennoch befindet sich das Objekt in einem renovierungsbedürftigen Zustand – eine ideale Gelegenheit für alle, die sich selbst Ihr eigenes Zuhause nach Ihren Wünschen und Ideen gestalten möchten.
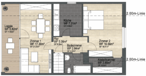
Im Erdgeschoss empfängt Sie ein durchdachter Grundriss mit idealer Aufteilung. Neben einer funktionalen Küche im eigenen Raum mit angrenzendem Essbereich bildet das großzügige Wohnzimmer, mit Zugang zur überdachten Südterrasse, das Herzstück des Hauses. Im privaten Flur befinden sich drei Schlafzimmer sowie ein Badezimmer mit Dusche und Wanne. Ein separates Gäste-WC ergänzt die Etage.
Das Obergeschoss bietet zusätzliche Wohnfläche und eignet sich ideal als Rückzugsort für die Familie. Hier erwarten Sie ein großes Zimmer mit Balkon, eine kleine Küche (denkbar wäre hier auch ein Kinder- oder Arbeitszimmer), ein Badezimmer mit Badewanne sowie ein weiteres Schlafzimmer.
Der Vollkeller überzeugt mit viel Stauraum und zusätzlichen Nutzungsmöglichkeiten: Neben klassischen Abstellräumen finden Sie hier eine Waschküche mit Dusche und WC, eine Werkstatt sowie einen beheizten Partyraum mit Tageslicht. Der Zugang ist sowohl vom Hausinneren als auch direkt aus dem Garten möglich.
Im Außenbereich lädt ein gepflegter Garten mit brunnbetriebener Bewässerungsanlage zum Verweilen ein. Eine Garage mit Stellplatz sowie zwei weitere Parkmöglichkeiten direkt vor dem Haus runden das Gesamtbild ab.
Ein Haus mit solider Basis, klarer Struktur und viel Potenzial – bereit für die nächste Generation, die hier ein neues Kapitel aufschlägt.
Objektbeschreibung
Gepflegte Substanz, ruhige Lage und viel Raum zur Entfaltung – dieses Haus bietet ideale Voraussetzungen für Familien, die ein solides Zuhause suchen und es nach eigenen Vorstellungen gestalten möchten.
Das Einfamilienhaus wurde 1977 in massiver Bauweise errichtet und verfügt über rd. 186 m² Wohnfläche auf einem 703 m² großen Eigentumsgrundstück. Es wurde über die Jahre gepflegt und regelmäßig instand gehalten: Beispielsweise wurde das Dach 2021 gereinigt und imprägniert oder die Gasheizung im Jahr 2023 erneuert. Dennoch befindet sich das Objekt in einem renovierungsbedürftigen Zustand – eine ideale Gelegenheit für alle, die sich selbst Ihr eigenes Zuhause nach Ihren Wünschen und Ideen gestalten möchten.
Im Erdgeschoss empfängt Sie ein durchdachter Grundriss mit idealer Aufteilung. Neben einer funktionalen Küche im eigenen Raum mit angrenzendem Essbereich bildet das großzügige Wohnzimmer, mit Zugang zur überdachten Südterrasse, das Herzstück des Hauses. Im privaten Flur befinden sich drei Schlafzimmer sowie ein Badezimmer mit Dusche und Wanne. Ein separates Gäste-WC ergänzt die Etage.
Das Obergeschoss bietet zusätzliche Wohnfläche und eignet sich ideal als Rückzugsort für die Familie. Hier erwarten Sie ein großes Zimmer mit Balkon, eine kleine Küche (denkbar wäre hier auch ein Kinder- oder Arbeitszimmer), ein Badezimmer mit Badewanne sowie ein weiteres Schlafzimmer.
Der Vollkeller überzeugt mit viel Stauraum und zusätzlichen Nutzungsmöglichkeiten: Neben klassischen Abstellräumen finden Sie hier eine Waschküche mit Dusche und WC, eine Werkstatt sowie einen beheizten Partyraum mit Tageslicht. Der Zugang ist sowohl vom Hausinneren als auch direkt aus dem Garten möglich.
Im Außenbereich lädt ein gepflegter Garten mit brunnbetriebener Bewässerungsanlage zum Verweilen ein. Eine Garage mit Stellplatz sowie zwei weitere Parkmöglichkeiten direkt vor dem Haus runden das Gesamtbild ab.
Ein Haus mit solider Basis, klarer Struktur und viel Potenzial – bereit für die nächste Generation, die hier ein neues Kapitel aufschlägt.
Energieausweis
Kontaktdaten

38440 Wolfsburg