• Massivbau 1968, saniert 2000
• Anbau 2000
• 5 Schlafzimmer
• 3 Badezimmer mit Badewanne und Dusche
• Aufteilung in EFH und ELW
• Wohneinheiten durch Tür im OG verbunden
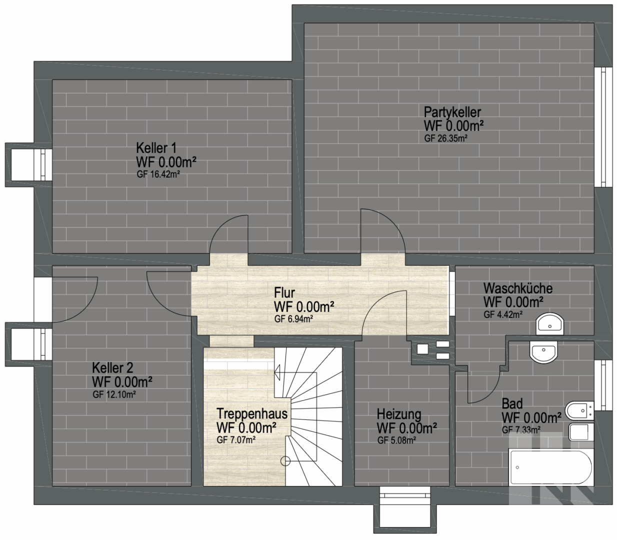
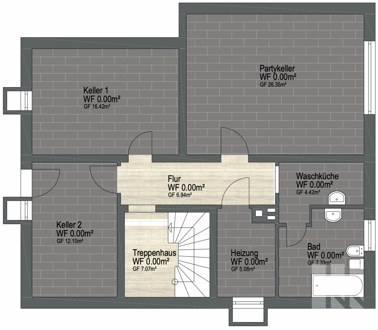
• Partykeller und Gäste WC im Keller
• Luftwärmepumpe (2023)
• 2-fach verglaste Kunstofffenster (2000)
• Wärmedämmung 2000
• Leitungen 2000
• Vollkeller
• Glasfaseranschluss
• Carport mit zwei Stellplätzen
Grafhorst: Einfamilienhaus mit Einliegerwohnung – flexibel nutzbar mit beeindruckendem Garten
Objektdaten
Ausstattung
Objektbeschreibung
Dieses Einfamilienhaus mit Einliegerwohnung in Grafhorst bietet rund 228 m² Wohnfläche auf einem 795 m² großen Grundstück – mit viel Platz, flexiblen Nutzungsmöglichkeiten und einem Garten, der definitiv im Kopf bleibt.
Der vordere Anbau aus dem Jahr 2000 empfängt Sie über ein gepflegtes Treppenhaus und führt in den hellen Wohn- und Essbereich im Obergeschoss. Große Fensterflächen sorgen für eine angenehme Atmosphäre, der überdachte Balkon erweitert den Wohnraum nach draußen. Die Küche liegt direkt angrenzend, ebenso ein Duschbad und das Schlafzimmer auf dieser Ebene. Insgesamt präsentiert sich dieser Bereich in einem Zustand, der einen direkten Einzug ermöglicht.
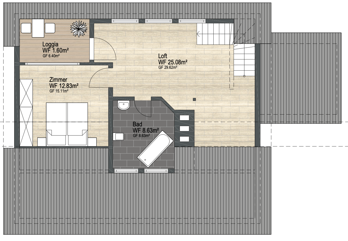
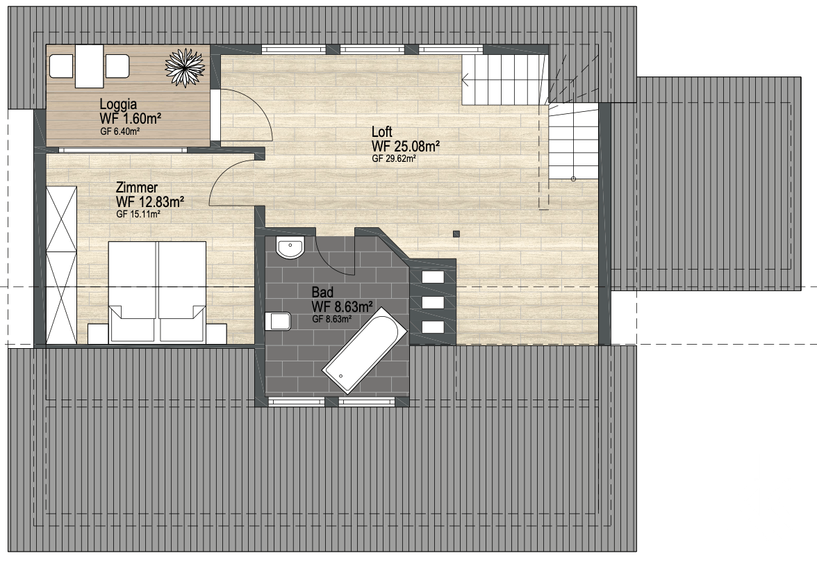
Im Dachgeschoss setzt sich das offene Raumgefühl fort. Ein weiterer Wohnbereich mit weitem Ausblick, ein zweites Badezimmer mit Badewanne sowie ein zusätzliches Schlafzimmer mit Zugang zum Balkon schaffen hier einen eigenständigen Rückzugsort.
Die Einliegerwohnung verfügt über einen separaten Eingang und bietet eine klassische Raumstruktur. Vom Flur aus erschließen sich alle Bereiche: das Wohnzimmer mit Zugang zur Terrasse und in den Garten, die Küche, ein Badezimmer sowie mehrere Zimmer, die sich flexibel nutzen lassen. Der Stil der 1970er Jahre ist hier noch erkennbar – entsprechend besteht Renovierungsbedarf, bietet aber gleichzeitig die Möglichkeit, die Räume nach eigenen Vorstellungen neu zu gestalten.
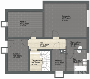
Im Keller ergänzt ein großzügiger Partyraum das Platzangebot, dazu kommen weitere Abstellflächen sowie ein zusätzliches Badezimmer. Praktisch: Von hier aus gelangen Sie auch direkt in den Garten.
Und genau hier liegt das eigentliche Highlight. Das weitläufige Grundstück bietet viel Raum für Freizeit und Erholung. Der große Pool ist dabei ein besonderer Blickfang und kann mit überschaubarem Aufwand wieder in Betrieb genommen werden – eine Seltenheit in dieser Größe.
Ein Carport mit zwei Stellplätzen rundet das Angebot ab.
Objektbeschreibung
Dieses Einfamilienhaus mit Einliegerwohnung in Grafhorst bietet rund 228 m² Wohnfläche auf einem 795 m² großen Grundstück – mit viel Platz, flexiblen Nutzungsmöglichkeiten und einem Garten, der definitiv im Kopf bleibt.
Der vordere Anbau aus dem Jahr 2000 empfängt Sie über ein gepflegtes Treppenhaus und führt in den hellen Wohn- und Essbereich im Obergeschoss. Große Fensterflächen sorgen für eine angenehme Atmosphäre, der überdachte Balkon erweitert den Wohnraum nach draußen. Die Küche liegt direkt angrenzend, ebenso ein Duschbad und das Schlafzimmer auf dieser Ebene. Insgesamt präsentiert sich dieser Bereich in einem Zustand, der einen direkten Einzug ermöglicht.
Im Dachgeschoss setzt sich das offene Raumgefühl fort. Ein weiterer Wohnbereich mit weitem Ausblick, ein zweites Badezimmer mit Badewanne sowie ein zusätzliches Schlafzimmer mit Zugang zum Balkon schaffen hier einen eigenständigen Rückzugsort.
Die Einliegerwohnung verfügt über einen separaten Eingang und bietet eine klassische Raumstruktur. Vom Flur aus erschließen sich alle Bereiche: das Wohnzimmer mit Zugang zur Terrasse und in den Garten, die Küche, ein Badezimmer sowie mehrere Zimmer, die sich flexibel nutzen lassen. Der Stil der 1970er Jahre ist hier noch erkennbar – entsprechend besteht Renovierungsbedarf, bietet aber gleichzeitig die Möglichkeit, die Räume nach eigenen Vorstellungen neu zu gestalten.
Im Keller ergänzt ein großzügiger Partyraum das Platzangebot, dazu kommen weitere Abstellflächen sowie ein zusätzliches Badezimmer. Praktisch: Von hier aus gelangen Sie auch direkt in den Garten.
Und genau hier liegt das eigentliche Highlight. Das weitläufige Grundstück bietet viel Raum für Freizeit und Erholung. Der große Pool ist dabei ein besonderer Blickfang und kann mit überschaubarem Aufwand wieder in Betrieb genommen werden – eine Seltenheit in dieser Größe.
Ein Carport mit zwei Stellplätzen rundet das Angebot ab.
Energieausweis
Kontaktdaten












































