Investieren in Top-Lage – Mehrfamilienhaus im Hasenwinkel

Kaufpreis 297.000 €

Objektdaten

Ort
38448 Tiergartenbreite
Wohnfläche
ca. 197,00 m²
Grundstücksfläche
ca. 560,00 m²
Anzahl Zimmer
7
Anzahl Schlafzimmer
4
Anzahl Badezimmer
3
Anzahl Balkon / Terrasse
1
Anzahl Stellplätze
2
Baujahr
1962
Zustand
Gepflegt

Ausstattung

• stetig modernisiertes MFH
• aktuell in 3 Wohneinheiten aufgeteilt
• 2 und 3 Zimmer, jeweils mit Küche sowie Badezimmer mit Fenster
• Terrasse im EG, Balkon im 1. OG
• OG (70 m²) vermietet
• DG (50 m²) vermietet
• EG (77 m²) leerstehend

• Außendämmung 2013
• Kunststofffemster 3-fach verglast 2013 mit Außenrollläden (EG, OG & DG)
• Kunststofffenster 2-fach verglast 2013 im Keller
• Elektrik 2006 bis 2013
• Dachsanierung inkl. Dämmung 2005
• Badezimmer aus 2017
• Vollkeller in sehr gepflegtem Zustand
• Fernwärme
• Glasfaseranschluss
• 1 Garage
• 1 privater Stellplatz

• Erbpacht der Stadt Wolfsburg
• Der jährliche Erbpachtzins beträgt zukünftig ca. 245 €
• Restlaufzeit: 35 Jahre, bis 2060
• Kaufpreis des Grundstücks ca. 91.778 € (bei Eigennutzung)

Objektbeschreibung

In bevorzugter Wohnlage der Wolfsburger Nordstadt, in der Tiergartenbreite, befindet sich dieses laufend modernisierte Mehrfamilienhaus mit drei Wohneinheiten. Die Kombination aus ruhigem Wohnumfeld, guter Vermietbarkeit und umfangreichen Modernisierungen macht das Objekt attraktiv für langfristig orientierte Anleger.

Das Haus wurde über die Jahre kontinuierlich instand gehalten und technisch auf einen überzeugenden Stand gebracht. Dazu zählen unter anderem die Außendämmung (2013), dreifach verglaste Kunststofffenster mit Außenrollläden (EG, OG & DG, ebenfalls 2013), eine modernisierte Elektrik (2006–2013) sowie eine umfassende Dachsanierung inklusive Dämmung im Jahr 2005. Ein Glasfaseranschluss, Fernwärmeversorgung und der sehr gepflegte Vollkeller runden die technische Ausstattung ab.

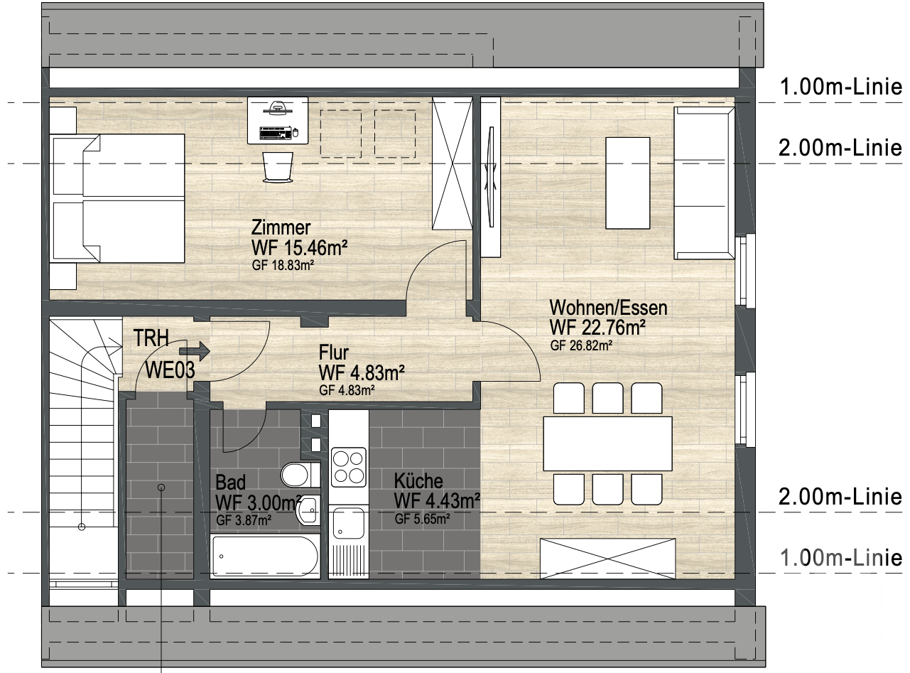
Die insgesamt ca. 197 m² Wohnfläche verteilen sich auf drei Einheiten:
• Erdgeschoss – ca. 77 m² mit modernem Bad (2017) und direktem Zugang zur Terrasse – aktuell leerstehend
• Obergeschoss – ca. 70 m² mit Balkon – vermietet
• Dachgeschoss – ca. 50 m² – vermietet

Alle Wohnungen verfügen über praktische Grundrisse mit 2–3 Zimmern, Einbauküchen sowie Tageslichtbädern. Der Leerstand im Erdgeschoss eröffnet Spielraum – für eine unkomplizierte Neuvermietung oder gegebenenfalls Eigennutzung.

Zum Haus gehören außerdem eine Garage und ein privater Stellplatz. Das Wohnumfeld ist geprägt von gepflegten Einfamilien- und kleineren Mehrfamilienhäusern, einer sehr guten Anbindung an die Innenstadt sowie kurzen Wegen zu Einkaufsmöglichkeiten, Schulen und Freizeitangeboten.

Diese Immobilie bietet eine verlässliche Perspektive für Kapitalanleger – mit einer stabilen Mieterstruktur, keinem kurzfristigen Modernisierungsbedarf und einer gefragten Lage in Wolfsburgs Norden.

Die Immobilie steht auf einem Erbpachtgrundstück. Der Kaufpreis des Grundstücks bei Eigennutzung beträgt ca. 91.778 €. Der jährliche Erbpachtzins beträgt zukünftig ca. 245 €. Der bestehende Vertrag läuft noch 35 Jahre und endet im Jahr 2060.

Objektbeschreibung

In bevorzugter Wohnlage der Wolfsburger Nordstadt, in der Tiergartenbreite, befindet sich dieses laufend modernisierte Mehrfamilienhaus mit drei Wohneinheiten. Die Kombination aus ruhigem Wohnumfeld, guter Vermietbarkeit und umfangreichen Modernisierungen macht das Objekt attraktiv für langfristig orientierte Anleger.

Das Haus wurde über die Jahre kontinuierlich instand gehalten und technisch auf einen überzeugenden Stand gebracht. Dazu zählen unter anderem die Außendämmung (2013), dreifach verglaste Kunststofffenster mit Außenrollläden (EG, OG & DG, ebenfalls 2013), eine modernisierte Elektrik (2006–2013) sowie eine umfassende Dachsanierung inklusive Dämmung im Jahr 2005. Ein Glasfaseranschluss, Fernwärmeversorgung und der sehr gepflegte Vollkeller runden die technische Ausstattung ab.

Die insgesamt ca. 197 m² Wohnfläche verteilen sich auf drei Einheiten:
• Erdgeschoss – ca. 77 m² mit modernem Bad (2017) und direktem Zugang zur Terrasse – aktuell leerstehend
• Obergeschoss – ca. 70 m² mit Balkon – vermietet
• Dachgeschoss – ca. 50 m² – vermietet

Alle Wohnungen verfügen über praktische Grundrisse mit 2–3 Zimmern, Einbauküchen sowie Tageslichtbädern. Der Leerstand im Erdgeschoss eröffnet Spielraum – für eine unkomplizierte Neuvermietung oder gegebenenfalls Eigennutzung.

Zum Haus gehören außerdem eine Garage und ein privater Stellplatz. Das Wohnumfeld ist geprägt von gepflegten Einfamilien- und kleineren Mehrfamilienhäusern, einer sehr guten Anbindung an die Innenstadt sowie kurzen Wegen zu Einkaufsmöglichkeiten, Schulen und Freizeitangeboten.

Diese Immobilie bietet eine verlässliche Perspektive für Kapitalanleger – mit einer stabilen Mieterstruktur, keinem kurzfristigen Modernisierungsbedarf und einer gefragten Lage in Wolfsburgs Norden.

Die Immobilie steht auf einem Erbpachtgrundstück. Der Kaufpreis des Grundstücks bei Eigennutzung beträgt ca. 91.778 €. Der jährliche Erbpachtzins beträgt zukünftig ca. 245 €. Der bestehende Vertrag läuft noch 35 Jahre und endet im Jahr 2060.

Energieausweis

Energieausweisliegt vor
Energie­ausweistypBedarfsausweis
Erstellt am27.09.2024
Gültig bis27.09.2034
PrimärenergieträgerFernwärme
EnergieeffizienzklasseC
Endenergiebedarf83,80 kWh/(m²·a)
HeizungsartFernwärme
HeizungsartFernwärme

Kontaktdaten

Simon Rößer
Simon Rößer
Lessingstraße 70
38440 Wolfsburg
E-Mails.roesser@immobilienkk.deTelefon05361 83446-71

Compare