• Massivbau
• Feldrandlage
• 5 Schlafzimmer
• zwei Badezimmer mit Tageslicht
• Gäste WC
• großer Wohnbereich mit Parkett (2021)
• Einbauküche im EG (möglich im OG)
• pflegeleichter Garten
• 2-fach verglaste Kunststofffenster mit Außenrollläden (2002)
• Vollkeller mit Hobbyräumen und viel Stellfläche
• Glasfaseranschluss
• Garage mit elektrischem Tor (2022)
• weitere Stellplätze auf dem Grundstück
Viel Platz und Potenzial – Einfamilienhaus mit Keller, Garage und schönem Garten in Grußendorf
Objektdaten
Ausstattung
Objektbeschreibung
In ruhiger Feldrandlage von Grußendorf erwartet Sie dieses massiv gebaute Einfamilienhaus aus dem Jahr 1977. Mit Vollkeller, Garage, zwei Stellplätzen sowie einem großzügigen Garten bietet es viel Raum für Ihre Ideen und Gestaltungsmöglichkeiten.
Im Erdgeschoss betreten Sie zunächst den Windfang mit Gäste-WC, bevor Sie in die Küche mit anliegender Speisekammer gelangen. Herzstück des Hauses ist der große Wohn- und Essbereich, in dem das 2021 erneuerte Parkett für eine angenehme Wohnatmosphäre sorgt. Von hier führt der Weg hinaus auf die überdachte Terrasse – ein herrlicher Platz für entspannte Stunden mit Blick ins Grüne.
Ergänzt wird diese Ebene durch ein Schlafzimmer, ein weiteres Zimmer, das sich flexibel als Kinderzimmer oder Homeoffice nutzen lässt, sowie ein Badezimmer mit Badewanne und Dusche.
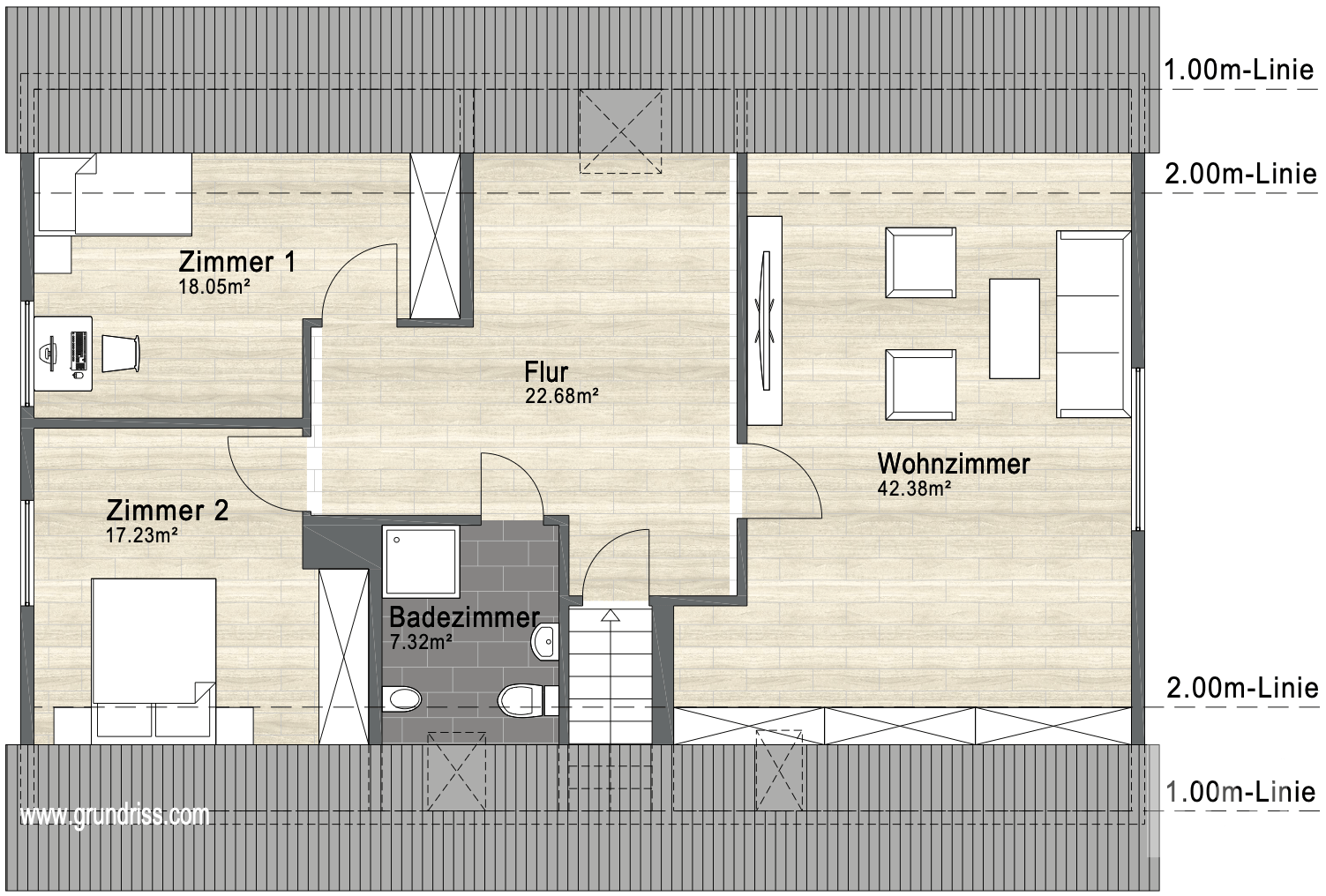
Das ausgebaute Obergeschoss bietet zwei weitere Schlafzimmer, ein zusätzliches Zimmer mit der Möglichkeit, eine Küche einzurichten, sowie ein weiteres Badezimmer mit Dusche.
Im Vollkeller stehen Ihnen mehrere Abstellräume, eine Waschküche, ein großzügiger Hobbyraum sowie die Ölheizung (Baujahr 2003) zur Verfügung.
Der pflegeleicht angelegte Garten lädt zum Spielen, Sonnen und Entspannen ein. Dank der Feldrandlage genießen Sie hier wohltuende Ruhe und einen schönen Ausblick.
Gut zu wissen:
Das Haus befindet sich in einem gepflegten, jedoch größtenteils dem Baujahr entsprechenden Zustand und ist renovierungsbedürftig – ideal für Käufer, die ein solides Fundament mit viel Platz suchen und ihr Zuhause nach eigenen Vorstellungen modernisieren möchten.
Objektbeschreibung
In ruhiger Feldrandlage von Grußendorf erwartet Sie dieses massiv gebaute Einfamilienhaus aus dem Jahr 1977. Mit Vollkeller, Garage, zwei Stellplätzen sowie einem großzügigen Garten bietet es viel Raum für Ihre Ideen und Gestaltungsmöglichkeiten.
Im Erdgeschoss betreten Sie zunächst den Windfang mit Gäste-WC, bevor Sie in die Küche mit anliegender Speisekammer gelangen. Herzstück des Hauses ist der große Wohn- und Essbereich, in dem das 2021 erneuerte Parkett für eine angenehme Wohnatmosphäre sorgt. Von hier führt der Weg hinaus auf die überdachte Terrasse – ein herrlicher Platz für entspannte Stunden mit Blick ins Grüne.
Ergänzt wird diese Ebene durch ein Schlafzimmer, ein weiteres Zimmer, das sich flexibel als Kinderzimmer oder Homeoffice nutzen lässt, sowie ein Badezimmer mit Badewanne und Dusche.
Das ausgebaute Obergeschoss bietet zwei weitere Schlafzimmer, ein zusätzliches Zimmer mit der Möglichkeit, eine Küche einzurichten, sowie ein weiteres Badezimmer mit Dusche.
Im Vollkeller stehen Ihnen mehrere Abstellräume, eine Waschküche, ein großzügiger Hobbyraum sowie die Ölheizung (Baujahr 2003) zur Verfügung.
Der pflegeleicht angelegte Garten lädt zum Spielen, Sonnen und Entspannen ein. Dank der Feldrandlage genießen Sie hier wohltuende Ruhe und einen schönen Ausblick.
Gut zu wissen:
Das Haus befindet sich in einem gepflegten, jedoch größtenteils dem Baujahr entsprechenden Zustand und ist renovierungsbedürftig – ideal für Käufer, die ein solides Fundament mit viel Platz suchen und ihr Zuhause nach eigenen Vorstellungen modernisieren möchten.
Energieausweis
Kontaktdaten

38440 Wolfsburg

























