• Massivbau
• Maisonettewohnung mit offener Galerie
• 2 Schlafzimmer
• großer Wohnbereich mit Parkettboden
• Einbauküche
• sonniger Balkon
• Badezimmer mit Wanne und Dusche
• Kunststofffenster 2-fach verglast
• privater Kellerraum
• Carportstellplatz
• Fernwärme
Wohnen mit Stil – Maisonettewohnung mit drei separaten Zimmern und Galerie im Sandkamp
Objektdaten
Ausstattung
Objektbeschreibung
Diese besondere Maisonettewohnung bietet drei separate Zimmer sowie eine offen gestaltete Galerieebene und verbindet Großzügigkeit, Licht und ein außergewöhnliches Raumgefühl zu einem Zuhause mit Charakter. Das Wohnen auf zwei Ebenen schafft Weite und Individualität – ohne klassische Grenzen.
Auf rund 86 m² Wohnfläche überzeugt die Wohnung durch einen klar strukturierten Grundriss. Der Eingangsbereich wirkt offen und erschließt alle Räume der unteren Ebene. Zwei der separaten Zimmer eignen sich flexibel als Schlaf-, Arbeits- oder Gästezimmer. Eines davon verfügt über direkten Zugang zum Balkon, der dank Südwest-Ausrichtung viele Sonnenstunden und entspannte Abendmomente bietet.
Die intelligent geschnittene Küche überzeugt mit kurzen Wegen und ausreichend Platz für gemeinsames Kochen und fügt sich harmonisch in das Wohnkonzept ein. Der Wohnbereich bildet das Herzstück der Wohnung: offen, lichtdurchflutet und über zwei Ebenen erlebbar. Große Fensterflächen und die offene Raumhöhe sorgen für eine angenehme, moderne Wohnatmosphäre.
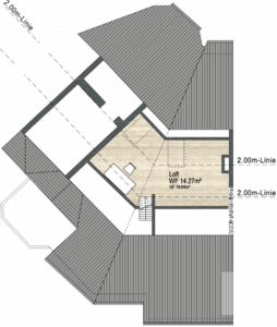
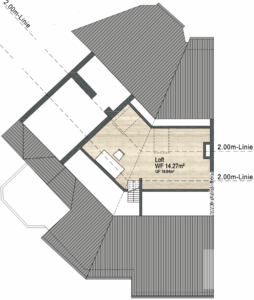
Über eine elegante Massivholztreppe gelangen Sie auf die Galerieebene. Dieser offene Bereich verleiht der Wohnung ihren loftartigen Charakter und lässt sich flexibel als zusätzlicher Wohnraum, Homeoffice oder kreativer Rückzugsort nutzen.
Das Badezimmer ist zeitlos gestaltet und mit Dusche sowie Badewanne ausgestattet. Ein weiteres separates Zimmer liegt ruhig am Ende des Flurs und bietet ausreichend Platz für einen komfortablen Rückzugsort.
Ein eigener Kellerraum sowie ein geschützter Carportstellplatz ergänzen dieses attraktive Angebot.
Die Wohnung befindet sich in einem gepflegten Wohngebäude aus dem Jahr 1997 in ruhiger Lage von Sandkamp und richtet sich an alle, die offenes Wohnen, klare Grundrisse und ein besonderes Raumgefühl schätzen.
Objektbeschreibung
Diese besondere Maisonettewohnung bietet drei separate Zimmer sowie eine offen gestaltete Galerieebene und verbindet Großzügigkeit, Licht und ein außergewöhnliches Raumgefühl zu einem Zuhause mit Charakter. Das Wohnen auf zwei Ebenen schafft Weite und Individualität – ohne klassische Grenzen.
Auf rund 86 m² Wohnfläche überzeugt die Wohnung durch einen klar strukturierten Grundriss. Der Eingangsbereich wirkt offen und erschließt alle Räume der unteren Ebene. Zwei der separaten Zimmer eignen sich flexibel als Schlaf-, Arbeits- oder Gästezimmer. Eines davon verfügt über direkten Zugang zum Balkon, der dank Südwest-Ausrichtung viele Sonnenstunden und entspannte Abendmomente bietet.
Die intelligent geschnittene Küche überzeugt mit kurzen Wegen und ausreichend Platz für gemeinsames Kochen und fügt sich harmonisch in das Wohnkonzept ein. Der Wohnbereich bildet das Herzstück der Wohnung: offen, lichtdurchflutet und über zwei Ebenen erlebbar. Große Fensterflächen und die offene Raumhöhe sorgen für eine angenehme, moderne Wohnatmosphäre.
Über eine elegante Massivholztreppe gelangen Sie auf die Galerieebene. Dieser offene Bereich verleiht der Wohnung ihren loftartigen Charakter und lässt sich flexibel als zusätzlicher Wohnraum, Homeoffice oder kreativer Rückzugsort nutzen.
Das Badezimmer ist zeitlos gestaltet und mit Dusche sowie Badewanne ausgestattet. Ein weiteres separates Zimmer liegt ruhig am Ende des Flurs und bietet ausreichend Platz für einen komfortablen Rückzugsort.
Ein eigener Kellerraum sowie ein geschützter Carportstellplatz ergänzen dieses attraktive Angebot.
Die Wohnung befindet sich in einem gepflegten Wohngebäude aus dem Jahr 1997 in ruhiger Lage von Sandkamp und richtet sich an alle, die offenes Wohnen, klare Grundrisse und ein besonderes Raumgefühl schätzen.
Energieausweis
Kontaktdaten

38440 Wolfsburg















